✔ Укладка ламината
✔ Установка плинтусов
✔ Укладка керамической плитки в ванной и туалете
✔ Оштукатуривание откосов, установка малярных уголков
✔ Установка подоконников
✔ Отделка откосов (шпатлевка, грунтовка, окраска)
✔ Отделка стен (шпатлевка, грунтовка, обои)
✔ Облицовка плиткой в ванной и туалете
✔ Натяжные (в стоимость включены материалы)
✔ Установка межкомнатных дверей 5 шт.
✔ Установка вент.решеток 3 шт.
✔ Установка порожков 4 шт.
✔ Устройство короба из ГКЛ в туалете
✔ Установка унитаза
✔ Установка стальной ванны со смесителем
✔ Установка раковинысо смесителем и зеркалом
✔ Установка запорных кранов 3 шт.
✔ Устройство слаботочных розеток 3 шт. (антенна)
Клей плиточный, грунтовка, Ротбанд, ГКЛ, профиль, пена монтажная, подоконники, шпатлевка, малярные уголки.
Итого ориентировочная стоимость «черновых» материалов: 26 000,00 руб.
Всего: 243 856,30 руб. – стоимость работ с «черновыми» материалами.
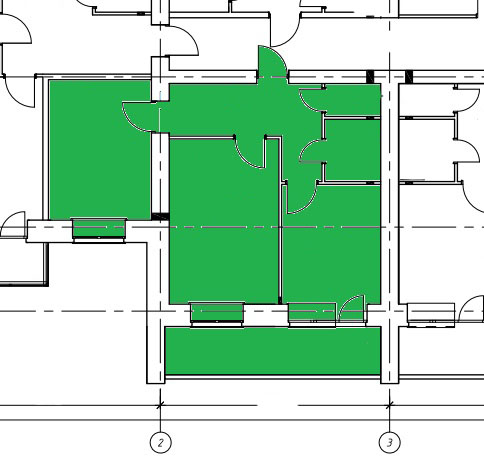
2-комнатная квартира
52,5 м2
Стоимость ремонта
217 856,30 руб.

Новоселам скидка 10%